Projekt Ludersdorf – Wilfersdorf

Projekt Ludersdorf – Wilfersdorf

Wohnen in Ludersdorf-Wilfersdorf – Modern, naturnah und hochwertig gebaut

In traumhafter Lage nahe Gleisdorf entsteht eine moderne Wohnanlage mit 16 exklusiven Einheiten in Ziegelmassiv-Bauweise – ideal für alle, die stilvolles Wohnen in ruhiger Umgebung schätzen. Die großzügigen Gärten oder Dachterrassen schaffen zusätzlichen Raum zum Durchatmen und Genießen.

Ob Single, Paar oder Familie – die clever geschnittenen 2- bis 4-Zimmer-Wohnungen bieten durchdachte Grundrisse, hochwertige Ausstattung und ein behagliches Wohnklima. Dank effizienter Luftwärmepumpe, Fußbodenheizung und Photovoltaik wohnen Sie hier nachhaltig und komfortabel zugleich.

Die Gemeinde überzeugt mit ländlicher Idylle und urbaner Nähe: Einkaufsmöglichkeiten, Schulen, Ärzte und Autobahn sind in wenigen Minuten erreichbar. Perfekt für alle, die Natur und gute Infrastruktur verbinden möchten.

Zwei fixe Parkplätze und ein eigener Abstellraum pro Einheit runden das Angebot ab – einziehen, wohlfühlen und ankommen!

Eckdaten:

Anzahl Wohneinheiten: 16
Parkplätze: 2 pro Einheit
Heizung: Luftwärmepumpe mit Fußbodenheizung
Ausstattung: Terrasse, Garten oder Dachterrasse, Kellerraum, PV-Anlage
Fertigstellung: Geplant für März 2026
Preise: Fixpreise, schlüsselfertig

Jetzt Wohntraum sichern – in Ludersdorf-Wilfersdorf!

Projekt Details

Objektart
1 Wohnanlage mit 16 Wohneinheiten

Fertigstellung
Geplant für März 2026

Einheiten
3 verfügbar

Größe
42–70 m² je Einheit

Bildergalerie

Wohneinheiten

3 von 16 Einheiten verfügbar
42 m²

Top 1

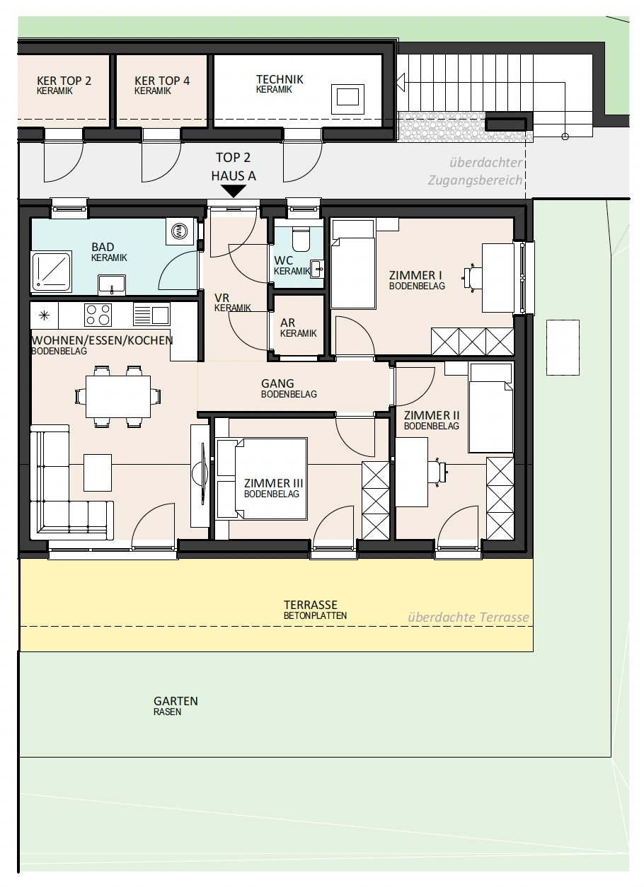
Diese 42 m² große Erdgeschosswohnung bietet alles, was du für ein gemütliches Zuhause brauchst. Eine clevere Raumaufteilung, eine moderne Wohn-Essküche und ein gut geschnittenes Schlafzimmer machen die Wohnung perfekt für Singles oder Paare. Eine private Terrasse mit großem Garten lädt zum Entspannen ein.

Wohnung:

Haus A – Top 1

Wohnfläche:

42 m²

Zimmer:

2

Preis:

159.900,–

Verfügbarkeit:

70 m²

Top 2

Diese 70 m² große Erdgeschosswohnung bietet alles, was du für ein gemütliches Zuhause brauchst. Eine clevere Raumaufteilung, eine moderne Wohn-Essküche und drei gut geschnittene Schlafzimmer machen die Wohnung perfekt für Familien oder alle, die etwas mehr Platz suchen. Eine großzügige Terrasse mit herrlichem Privatgarten lädt zum Entspannen ein.

Wohnung:

Haus A – Top 2

Wohnfläche:

70 m²

Zimmer:

4

Preis:

258.750.–

Verfügbarkeit:

42 m²

Top 3

Diese 42 m² große Obergeschosswohnung bietet alles, was du für ein gemütliches Zuhause brauchst. Eine clevere Raumaufteilung, eine moderne Wohn-Essküche und ein gut geschnittenes Schlafzimmer machen die Wohnung perfekt für Singles oder Paare. Eine großzügige, private Dachterrasse lädt zum Entspannen ein.

Wohnung:

Haus A – Top 3

Wohnfläche:

42 m²

Zimmer:

2

Preis:

156.800,–

Verfügbarkeit:

70 m²

Top 4

Diese 70 m² große Obergeschosswohnung bietet alles, was du für ein gemütliches Zuhause brauchst. Eine clevere Raumaufteilung, eine moderne Wohn-Essküche und drei gut geschnittene Schlafzimmer machen die Wohnung perfekt für Familien oder alle, die etwas mehr Platz suchen. Eine großzügige, private Dachterrasse lädt zum Entspannen ein.

Wohnung:

Haus A – Top 4

Wohnfläche:

70 m²

Zimmer:

4

Preis:

257.700,–

Verfügbarkeit:

70 m²

Top 1

Diese 70 m² große Erdgeschosswohnung bietet alles, was du für ein gemütliches Zuhause brauchst. Eine clevere Raumaufteilung, eine moderne Wohn-Essküche und drei gut geschnittene Schlafzimmer machen die Wohnung perfekt für Familien oder alle, die etwas mehr Platz suchen. Eine großzügige Terrasse mit beeindruckendem Privatgarten lädt zum Entspannen ein.

Wohnung:

Haus B – Top 1

Wohnfläche:

70 m²

Zimmer:

4

Preis:

263.900,–

Verfügbarkeit:

62 m²

Top 2

Diese 70 m² große Erdgeschosswohnung bietet alles, was du für ein gemütliches Zuhause brauchst. Eine clevere Raumaufteilung, eine moderne Wohn-Essküche und zwei gut geschnittene Schlafzimmer machen die Wohnung perfekt für Paare, kleine Familien oder alle, die Wert auf großzügiges Wohnen legen. Eine private Terrasse mit angrenzendem Garten bietet viel Raum zum Entspannen im Freien.

Wohnung:

Haus B – Top 2

Wohnfläche:

62 m²

Zimmer:

3

Preis:

234.900,–

Verfügbarkeit:

70 m²

Top 3

Diese 70 m² große Obergeschosswohnung bietet alles, was du für ein gemütliches Zuhause brauchst. Eine clevere Raumaufteilung, eine moderne Wohn-Essküche und drei gut geschnittene Schlafzimmer machen die Wohnung perfekt für Familien oder alle, die etwas mehr Platz suchen. Eine großzügige, private Dachterrasse lädt zum Entspannen ein.

Wohnung:

Haus B – Top 3

Wohnfläche:

70 m²

Zimmer:

4

Preis:

258.900,–

Verfügbarkeit:

62 m²

Top 4

Diese 70 m² große Obergeschosswohnung bietet alles, was du für ein gemütliches Zuhause brauchst. Eine clevere Raumaufteilung, eine moderne Wohn-Essküche und zwei gut geschnittene Schlafzimmer machen die Wohnung perfekt für Paare, kleine Familien oder alle, die Wert auf großzügiges Wohnen legen. Eine großzügige, private Dachterrasse lädt zum Entspannen ein.

Wohnung:

Haus B – Top 4

Wohnfläche:

62 m²

Zimmer:

3

Preis:

229.900,–

Verfügbarkeit:

70 m²

Top 1

Diese 70 m² große Erdgeschosswohnung bietet alles, was du für ein gemütliches Zuhause brauchst. Eine clevere Raumaufteilung, eine moderne Wohn-Essküche und drei gut geschnittene Schlafzimmer machen die Wohnung perfekt für Familien oder alle, die etwas mehr Platz suchen. Eine großzügige Terrasse mit weitläufigem Privatgarten lädt zum Entspannen ein.

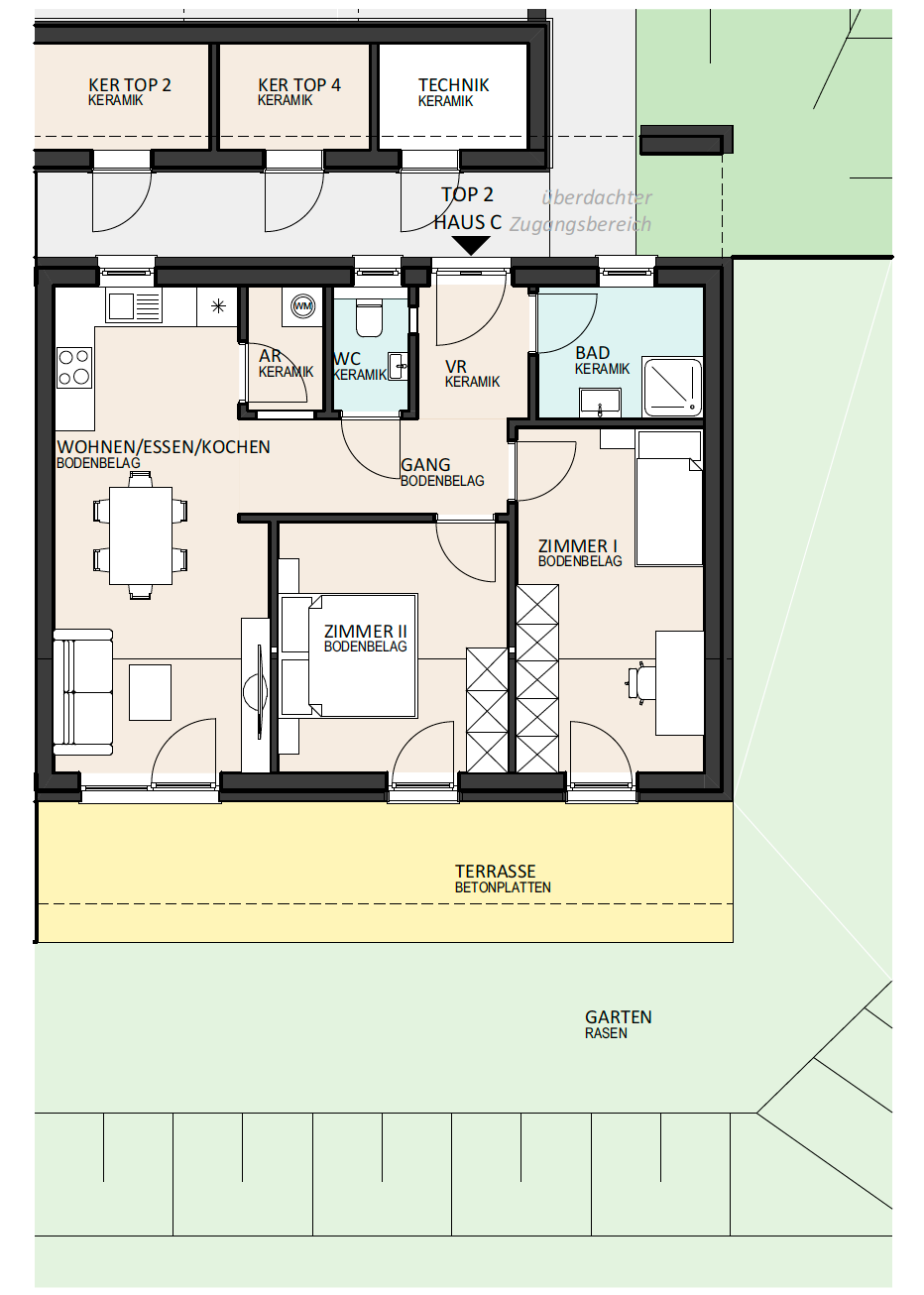
Wohnung:

Haus C – Top 1

Wohnfläche:

70 m²

Zimmer:

4

Preis:

263.900,–

Verfügbarkeit:

62 m²

Top 2

Diese 70 m² große Erdgeschosswohnung bietet alles, was du für ein gemütliches Zuhause brauchst. Eine clevere Raumaufteilung, eine moderne Wohn-Essküche und zwei gut geschnittene Schlafzimmer machen die Wohnung perfekt für Paare, kleine Familien oder alle, die großzügiges Wohnen mit Gartenanschluss schätzen. Eine sonnige Terrasse mit angrenzendem Privatgarten lädt zum Entspannen ein.

Wohnung:

Haus C – Top 2

Wohnfläche:

62 m²

Zimmer:

3

Preis:

235.900,–

Verfügbarkeit:

70 m²

Top 3

Diese 70 m² große Obergeschosswohnung bietet alles, was du für ein gemütliches Zuhause brauchst. Eine clevere Raumaufteilung, eine moderne Küche mit separatem Wohn-Essbereich und zwei gut geschnittene Schlafzimmer machen die Wohnung perfekt für Paare, kleine Familien oder alle, die großzügiges Wohnen schätzen. Eine weitläufige, private Dachterrasse lädt zum Entspannen ein.

Wohnung:

Haus C – Top 3

Wohnfläche:

70 m²

Zimmer:

4

Preis:

259.900,–

Verfügbarkeit:

62 m²

Top 4

Diese 70 m² große Obergeschosswohnung bietet alles, was du für ein gemütliches Zuhause brauchst. Eine clevere Raumaufteilung, eine moderne Wohn-Essküche und zwei gut geschnittene Schlafzimmer machen die Wohnung perfekt für Paare, kleine Familien oder alle, die ein durchdachtes Raumkonzept schätzen. Eine großzügige, private Dachterrasse lädt zum Entspannen ein.

Wohnung:

Haus C – Top 4

Wohnfläche:

62 m²

Zimmer:

3

Preis:

229.800,–

Verfügbarkeit:

42 m²

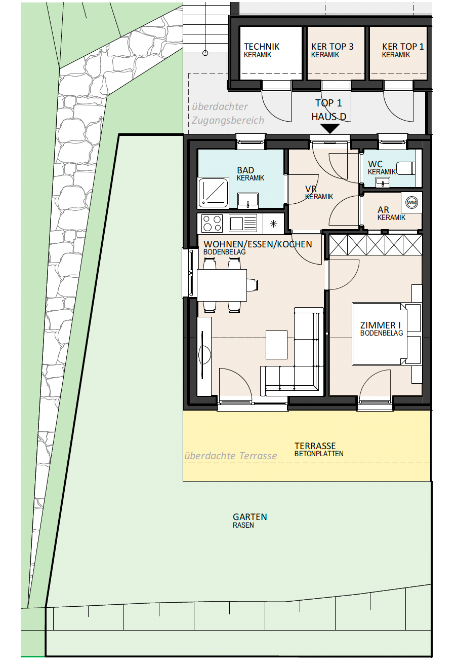
Top 1

Diese 42 m² große Erdgeschosswohnung bietet alles, was du für ein gemütliches Zuhause brauchst. Eine clevere Raumaufteilung, eine moderne Wohn-Essküche und ein gut geschnittenes Schlafzimmer machen die Wohnung perfekt für Singles oder Paare. Eine überdachte Terrasse mit großzügigem Privatgarten lädt zum Entspannen ein.

Wohnung:

Haus D – Top 1

Wohnfläche:

42 m²

Zimmer:

2

Preis:

156.800,–

Verfügbarkeit:

70 m²

Top 2

Diese 70 m² große Erdgeschosswohnung bietet alles, was du für ein gemütliches Zuhause brauchst. Eine clevere Raumaufteilung, eine moderne Wohn-Essküche und drei gut geschnittene Schlafzimmer machen die Wohnung perfekt für Familien oder alle, die gerne großzügig wohnen. Eine überdachte Terrasse mit weitläufigem Garten schafft zusätzlichen Raum zum Entspannen und Genießen im Freien.

Wohnung:

Haus D – Top 2

Wohnfläche:

70 m²

Zimmer:

4

Preis:

257.700,–

Verfügbarkeit:

42 m²

Top 3

Diese 42 m² große Obergeschosswohnung bietet alles, was du für ein gemütliches Zuhause brauchst. Eine clevere Raumaufteilung, eine moderne Wohn-Essküche und ein gut geschnittenes Schlafzimmer machen die Wohnung perfekt für Singles oder Paare. Eine großzügige, überdachte Dachterrasse lädt zum Entspannen ein.

Wohnung:

Haus D – Top 3

Wohnfläche:

42 m²

Zimmer:

2

Preis:

155.900,–

Verfügbarkeit:

70 m²

Top 4

Diese 70 m² große Obergeschosswohnung bietet alles, was du für ein gemütliches Zuhause brauchst. Eine clevere Raumaufteilung, eine moderne Wohn-Essküche und drei gut geschnittene Schlafzimmer machen die Wohnung perfekt für Familien oder alle, die großzügiges Wohnen lieben. Eine weitläufige, private Dachterrasse lädt zum Entspannen ein.

Wohnung:

Haus D – Top 4

Wohnfläche:

70 m²

Zimmer:

4

Preis:

256.400,–

Verfügbarkeit:

Lage

Bushaltestelle

170 m

Supermarkt

600 m

Arzt für Allgemeinmedizin

800 m

Ab- und Auffahrt zur A2

1,3 km

Volksschule

1,6 km

Sportplatz

1,6 km

Hauptplatz Gleisdorf

2,6 km

Apotheke

3 km

Persönliche und unverbindliche Beratung

Du hast Fragen zu diesem Wohnprojekt? Dann fordere einfach das Exposé an und wir beraten dich gerne kostenlos und unverbindlich.